Type 612
Description
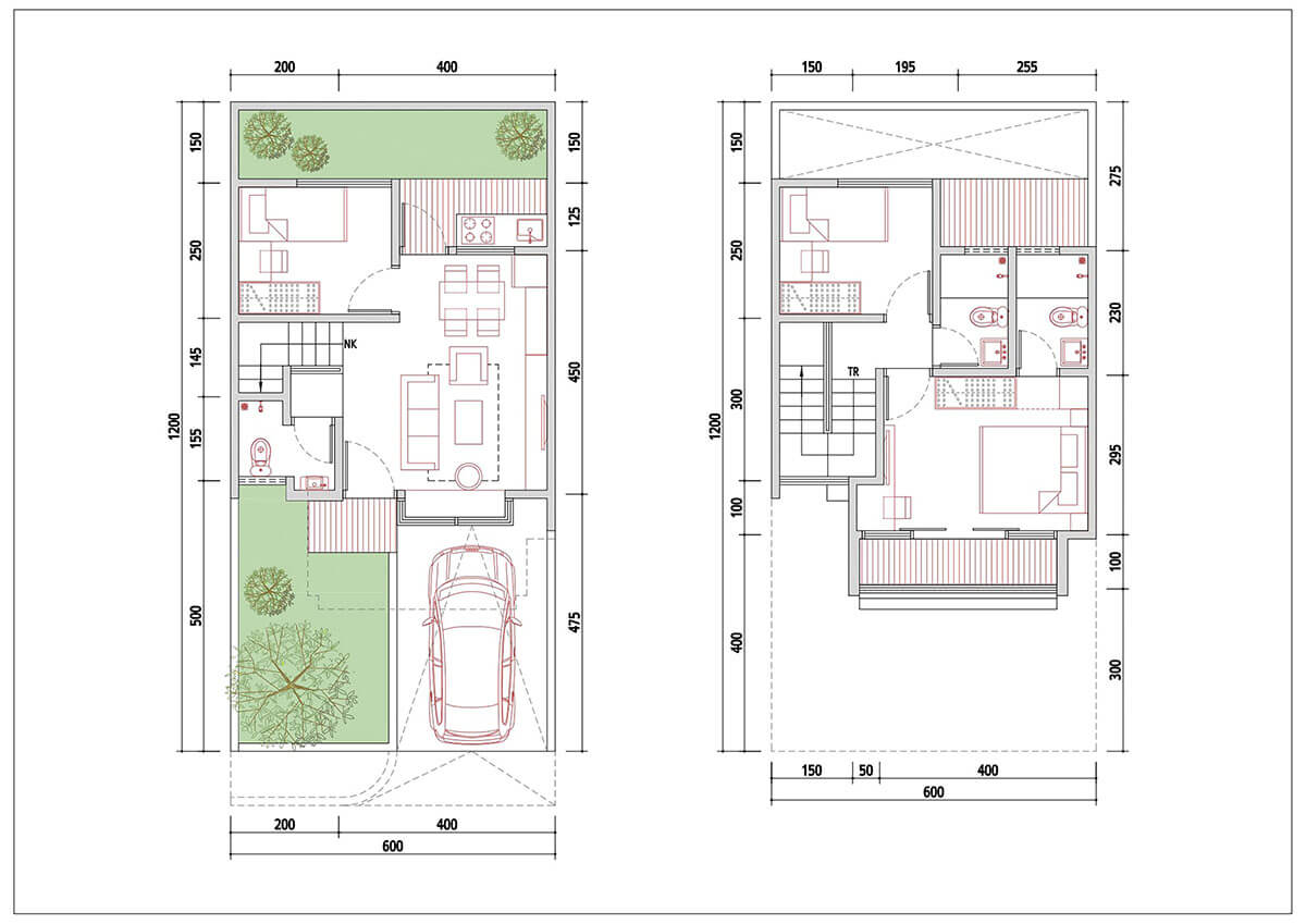
A Place of Harmony. Tipe 612 adalah rumah yang cocok untuk keluarga dengan anak-anak, dengan luas tanah 72 meter persegi dan luas bangunan 70 meter persegi. Rumah ini memiliki satu lantai yang dirancang dengan gaya modern dan minimalis. Rumah ini memiliki tiga kamar tidur, tiga kamar mandi, dan carport untuk satu mobil. Rumah ini juga memiliki ruang tamu, ruang keluarga, ruang makan, dapur, dan taman yang nyaman dan indah. Tipe 612 adalah rumah yang menawarkan kenyamanan, kepraktisan, dan keanggunan bagi Anda dan keluarga Anda.
Specification
Luas Tanah
72 ㎡
Luas Bangunan
70 ㎡
Kamar Tidur
3
Kamar Mandi
3
Parkir Mobil
1
Details
Apakah Anda mencari rumah yang cocok untuk keluarga dengan anak-anak, dengan luas tanah dan bangunan yang optimal? Jika ya, maka tipe 612 adalah pilihan yang tepat untuk Anda. Karena tipe 612 menawarkan kenyamanan, kepraktisan, dan keanggunan bagi Anda dan keluarga Anda.
Struktur
Beton Bertulang
Dinding
Plester cat
Lantai Utama
Homogenus Tile 60 x 60
Lantai Kamar Tidur
Homogenus Tile 60 x 60
Plafon
Gypsum Rangka Metal
Kusen Exterior
Aluminium
Kusen Interior
Engineering Wood
Daun Pintu
Engineering Wood
Rangka Atap
Baja Ringan
Penutup Atap
Genteng Beton
Sanitary
TOTO
Listrik
2200 W

Gallery
Sangkarahan segera dibuka untuk umum. Jangan lewatkan kesempatan untuk memiliki rumah idaman Anda di Sangkarahan. Hubungi kami sekarang juga untuk informasi lebih lanjut dan pemesanan unit. Sangkarahan, tempat benih mimpi menjadi kebahagiaan yang nyata.