Type 715

Description

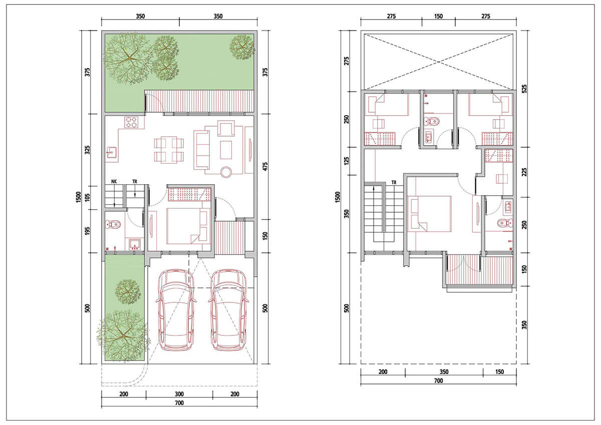
Prosperity Comes in Harmony. Tipe 715 adalah rumah terluas di Sangkarahan, dengan luas tanah 105 meter persegi dan luas bangunan 98 meter persegi. Rumah ini memiliki dua lantai yang dirancang dengan gaya minimalis dan elegan. Rumah ini cocok untuk keluarga besar, dengan empat kamar tidur, tiga kamar mandi, dan carport untuk dua mobil. Rumah ini juga memiliki ruang tamu, ruang keluarga, ruang makan, dapur, dan taman yang luas dan nyaman. Tipe 715 adalah rumah yang menawarkan kenyamanan, keamanan, dan keindahan bagi Anda dan keluarga Anda.

Specification

Luas Tanah

105

Luas Bangunan

98

Kamar Tidur

4

Kamar Mandi

3

Parkir Mobil

2

Details

Apakah Anda mencari rumah yang luas, mewah, dan nyaman untuk keluarga besar Anda? Jika ya, maka tipe 715 adalah pilihan yang tepat untuk Anda. Karena rumah tipe 715 menawarkan kenyamanan, keamanan, dan keindahan bagi Anda dan keluarga

Struktur

Beton Bertulang

Dinding

Plester cat

Lantai Utama

Homogenus Tile 60 x 60

Lantai Kamar Tidur

Homogenus Tile 60 x 60

Plafon

Gypsum Rangka Metal

Kusen Exterior

Aluminium

Kusen Interior

Engineering Wood

Daun Pintu

Engineering Wood

Rangka Atap

Baja Ringan

Penutup Atap

Genteng Beton

Sanitary

TOTO

Listrik

2200 W

denah type 715

Gallery

Sangkarahan segera dibuka untuk umum. Jangan lewatkan kesempatan untuk memiliki rumah idaman Anda di Sangkarahan. Hubungi kami sekarang juga untuk informasi lebih lanjut dan pemesanan unit. Sangkarahan, tempat benih mimpi menjadi kebahagiaan yang nyata.

club house cilegon
club house cilegon
club house cilegon